石神井公園の茶室

『 リノベーション と オーセンティシティ 』
マンションの住戸の中に四畳半の茶室を設計した。施主は表千家で茶道に親しみ、自宅住み替えのタイミングで新たに取得した住戸を改修し、茶室を設えることにした。求められたのは、お茶会の開ける茶室で、「真・行・草」の設えで言うところの、「行」の設えでありつつ、比較的新しいマンションのインテリアとの調和である。
お茶会も開けるお茶室をマンションのリビングに面して計画するため、リビングとお茶室がデザイン的に調和できるかが悩み所であった。
床の間の墨蹟窓には家紋をモチーフにしたデザインの障子を取り付けたい。
茶器等の道具がたくさんあることから、畳の床下を収納スペースとして活用したい。
茶室の裏側の部屋には着物を掛けられる長押が欲しい。
「2人の建築家に提案してもらいましたが、スピード感があり、要望を良く検討した提案がいただけたため、依頼することにしました。奥様がお茶を習っており、お茶に関する知識があった点も良かったです。」
元々リビングに面した部屋の壁と引戸を解体し、サッシやエアコンは活かしつつ、リビングに対して障子で開いたり閉じたりできる構成の茶室とした。既存の窓を活かすため、部屋の中にまた部屋がある入れ子状の構成とした。障子を閉めれば客室としても使える茶室であり、障子を取り外せばリビングと連続する小上がりの和室でもある。取り外した障子は行燈照明側の敷居と鴨居に収納しておく事もできる。
四畳半の茶室には床の間を設え、墨蹟窓を設けた。墨蹟窓は納戸との間に開けられ、墨蹟窓の障子の意匠は施主友人からのプレゼントであり、施主夫婦の家紋をモチーフにデザインされた。窓枠は竹材の曲げ加工とした。床の間に床脇は設けず、建具受けを兼ねる床柱は杉の面皮柱とした。リビングとの意匠のバランスを考慮し、シンプルで線の少ないデザインとし、落とし掛けは省略し、床框のない踏込み床とした。
茶室は床を上げ、納戸から使える床下収納として、茶器類を収納することができる。納戸側の壁には着物を掛けられるように長押を設えた。茶室の畳は熊本県産藁床の本畳とし、炉畳には電熱炉を設えた。炉の真上には天井下地を補強した上で釜蛭釘を差し込んだ。
「設計段階から現場段階までよく打合せを行い、最終的には建具の意匠や釘の位置などを現場でイメージしながら決められたため、安心して任せられました。本畳はとても座り心地が良く、日常的に畳の上で過ごす時間が増えました。設計者から紹介してもらった施工会社の担当者もお茶に親しんでおり、現場ではお互いに色々と調べながら進める事ができて良かったです。仕上がりにとても満足しています。」

元々リビングに面した寝室だった部屋の壁と引戸を解体し、サッシやエアコンは活かしつつ、リビングに対して障子で開いたり閉じたりできる構成の茶室。

茶室内部。天井まである障子もデザインし、特注製作とした。

床の間の墨蹟窓。枠は竹の曲げ枠とし、障子のデザインはお施主様のお友達からのプレゼント。

お茶室裏の納戸スペース。お茶室の床下は茶器類の収納スペースとした。壁には長押を設置して着物を掛けられるようにした。

お茶室内観。床の間には間接照明。

夕景。

夜景。お茶室のコーナーには行灯照明をデザインし製作した。

障子を閉めた夜景。お茶室全体が行灯のように、ぼんやり光る。

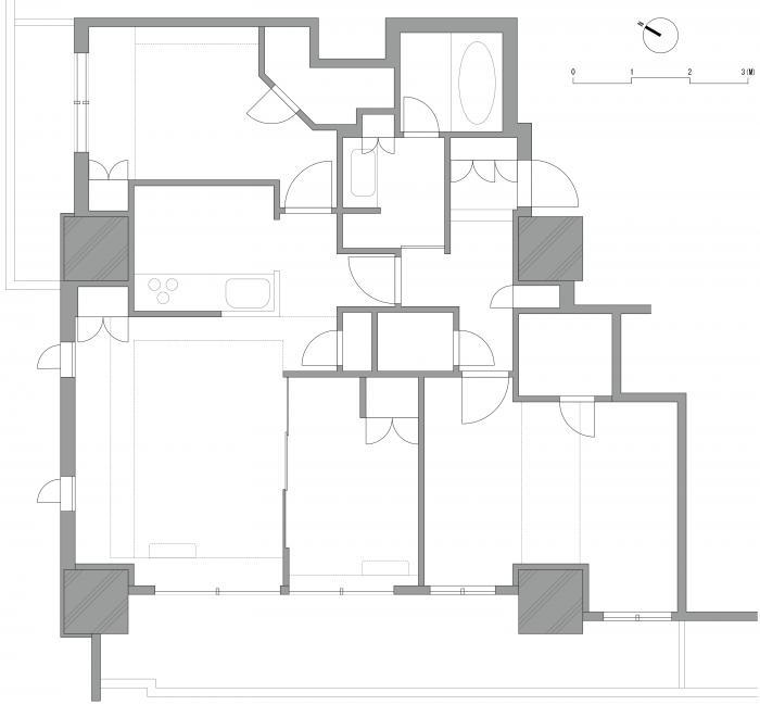
BEFORE. お茶室設置前平面図。

AFTER. お茶室設置後平面図。
建築家に設計を依頼するメリット・デメリット
建築家に設計を依頼しなくても、設計施工を一括で請け負ってくれる業者はたくさんあります。
なぜ、あえて建築家に設計を依頼する必要があるのでしょうか?
建築家に設計を依頼するメリット・デメリットは下記のページをご覧ください。
▼建築家に設計を依頼するメリット ▼建築家に設計を依頼するデメリット
建築家相談依頼サービス・最近の相談依頼事例
建築家相談依頼サービス・目次
建築家紹介センターでは建物を建てたい方にお近くの建築家を紹介する建築家相談依頼サービスを行っています。
建物について相談・依頼したい方はぜひ、下記のページをご覧ください。
| 建築家相談依頼サービス・目次 |
|---|
| 建築家相談依頼サービス・トップページ |
| 建築家相談依頼サービスの流れ |
| 建築家相談依頼サービスの特典 |
| 建築家相談依頼サービス・お客様の声 |
| 建築家相談依頼サービスの料金 |
| 建築家相談依頼サービス・最近の相談・依頼事例 |
| 建築家相談依頼サービスのよくある質問 |
| 建築家相談依頼サービスの安心安全宣言 |